品牌:GESSI
产品描述
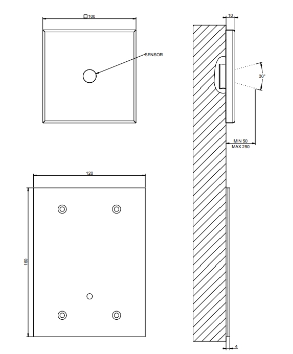
内置电子独立控制外部部件,带温度和流速设置框。
EDGE
CLARIDGE
ATELIER
ZORA
ZEPPELIN
ZANZIBAR
YINYANG
YAKUSUGI