Loading...

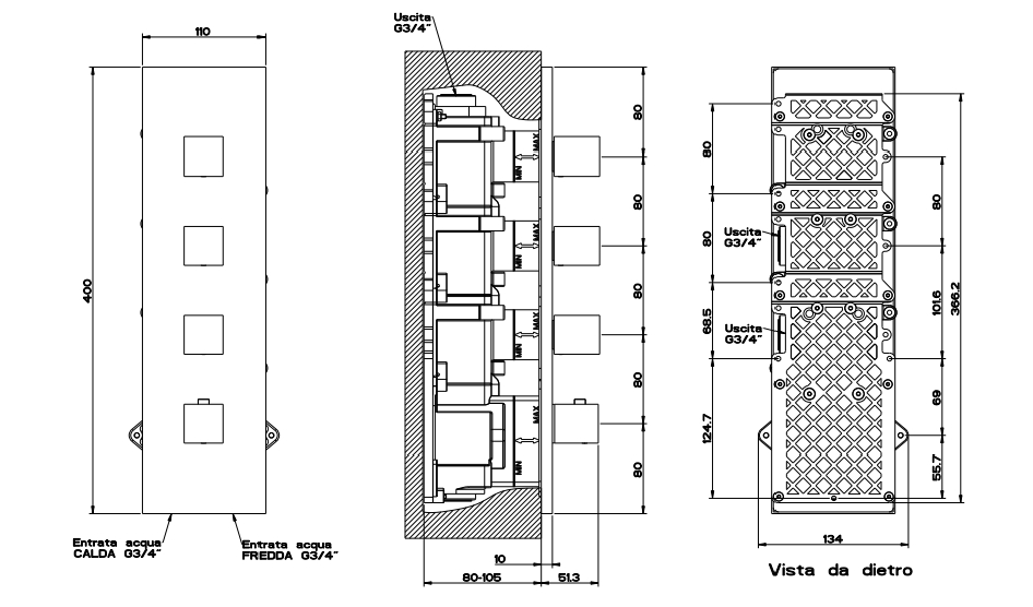
    ART. 43006

    品牌:GESSI

    产品描述

    ‎壁挂式恒温式大容量搅拌机的外部部件。垂直/水平设置,具有三个单独的退出‎

    产品尺寸: