品牌:GESSI
产品描述
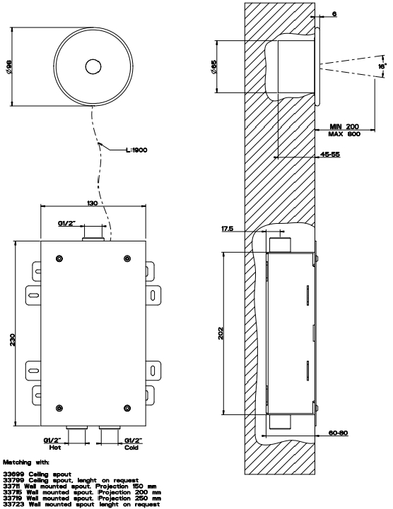
外置部件用于壁挂式电子独立控制(运行时间 15 秒),带温度和流量设置框
EDGE
CLARIDGE
ATELIER
ZORA
ZEPPELIN
ZANZIBAR
YINYANG
YAKUSUGI